Eladó Panel lakás Budapest XIII. kerület
Budapest XIII. kerület, Újlipótváros, Kárpát utca
106.000.000 Ft
(278.999 €)
Az ingatlan részletei
- Ajánlat: Eladó
- Tipus: Panel lakás
- Ár: 106.000.000 Ft
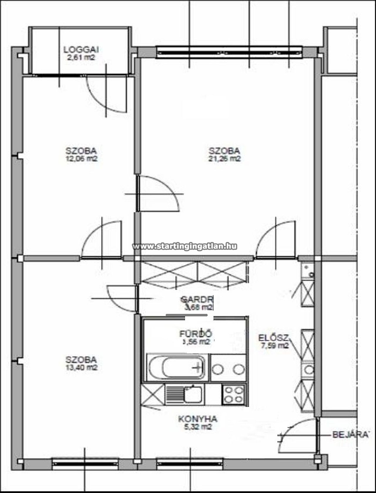
- Alapterület: 68 m2
- Emelet: 1. emelet
- Szobák: 3 szoba
- Épület szintjei: 10 szintes, lift van
- Erkély: van, 2 m2
- Kilátás: Utcai
- Állapot: Felújított
- Fűtés: Távhő egyedi merővel
- Komfort: Összkomfort
- Parkolás: Utcán, közterületen
Leírás
Azonosító: E-XIII-12-522
XIII. ker. Újlipótváros egyik legkedveltebb részén, a Szent István park és a Duna-part közvetlen közelében, a Kárpát utcában kínálunk megvételre egy kiváló hangulatú, teljes körűen felújított panel lakást. A tízemeletes, rendezett társasház első emeletén található, zárt folyosóról nyíló, 68 négyzetméteres, háromszobás otthon átgondolt elrendezésének és kétfrontos kialakításának köszönhetően világos és jól élhető tereket biztosít. A déli tájolású nappali és az erkélykapcsolatos hálószoba egész nap napfényben fürdik, míg az északi fekvésű konyha és a másik háló kellemesen hűvös marad a nyári hónapokban. A kádas fürdőszoba az illemhelyiséggel egy légtérben került kialakításra, panellakásokhoz képest tágas megoldást nyújtva.
A felújítás során megújult az elektromos és vízhálózat, kicserélték a burkolatokat, valamint a külső és belső nyílászárókat is, így az ingatlan azonnal költözhető állapotban várja új tulajdonosát.
A lakás jelenlegi berendezésének nagy része megegyezés szerint a vételár részét képezheti, ami tovább növeli a kényelmet és az értéket.
A közös költség vízátalánnyal együtt 28.800 forint, a fűtés díja 17.907Ft, a gázfogyasztás alacsony, az elektromos áram elszámolása pedig fogyasztás alapján történik.
Tehermentes ingatlanról van szó, amely rugalmasan birtokba vehető, ideális választás mindazok számára, akik Újlipótváros pezsgő, mégis nyugodt környezetében keresnek igényes, hosszú távon is értékálló otthont.
Azon kedves ügyfelek, akik általunk találják meg leendő otthonukat, az ügyvédünk által szerkesztett adásvételi szerződés díjából kedvezményben részesülnek.
Eladná ingatlanát? Bízza ránk!
Nálunk az értékesítés átlátható, egyszerű és biztonságos folyamat. A vételt és az eladást egy kézben tartjuk - így Önnek csak a sikeres üzletet kell ünnepelnie.
Hívjon minket még ma, és ingyenesen felmérjük ingatlana piaci értékét!
Miért válasszon minket?
- - Gyors értékesítés
- - Széles vevőkör
- - Tapasztalt értékesítők
- - Modern, kiemelt online megjelenés
- - Rugalmas jutalék
- - Teljes körű ügyintézés az első lépéstől a birtokbaadásig
Hívjon most, vagy Írjon üzenetet még ma, és indítsuk el az értékesítést! Hívjon most, vagy Írjon üzenetet még ma, és indítsuk el az értékesítést! Mobil: +36-20-448-6460
További ajánlataim: startingingatlan.hu/ertekesitoink/102
Üzenet a hirdetőnek
Ingatlan hírek és információk ELSŐ KÉZBŐL
Iratkozzon fel hírlevelünkre még ma, és mi havonta egyszer elküldjük Önnek a legfontosabb piaci változásokat, ingatlan trendeket és vásárlási tanácsokat, tippeket!







