Eladó Családi ház Budapest XIV. kerület
Budapest XIV. kerület, Alsórákos, Gödöllői utca
170.000.000 Ft
(447.451 €)
Az ingatlan részletei
- Ajánlat: Eladó
- Tipus: Családi ház
- Ár: 170.000.000 Ft
- Alapterület: 102 m2
- Telek mérete: 521 m2
- Emelet: Földszint
- Szobák: 3 szoba, 1 félszoba
- Épület szintjei: 1 szintes
- Erkély: van, 15 m2
- Kertkapcsolat: igen
- Kilátás: Kertre néző
- Állapot: Közepes állapotú
- Fűtés: Cirkó
- Komfort: Dupla komfort
- Parkolás: Felszíni beálló
Leírás
Azonosító: E-XIV-7-781
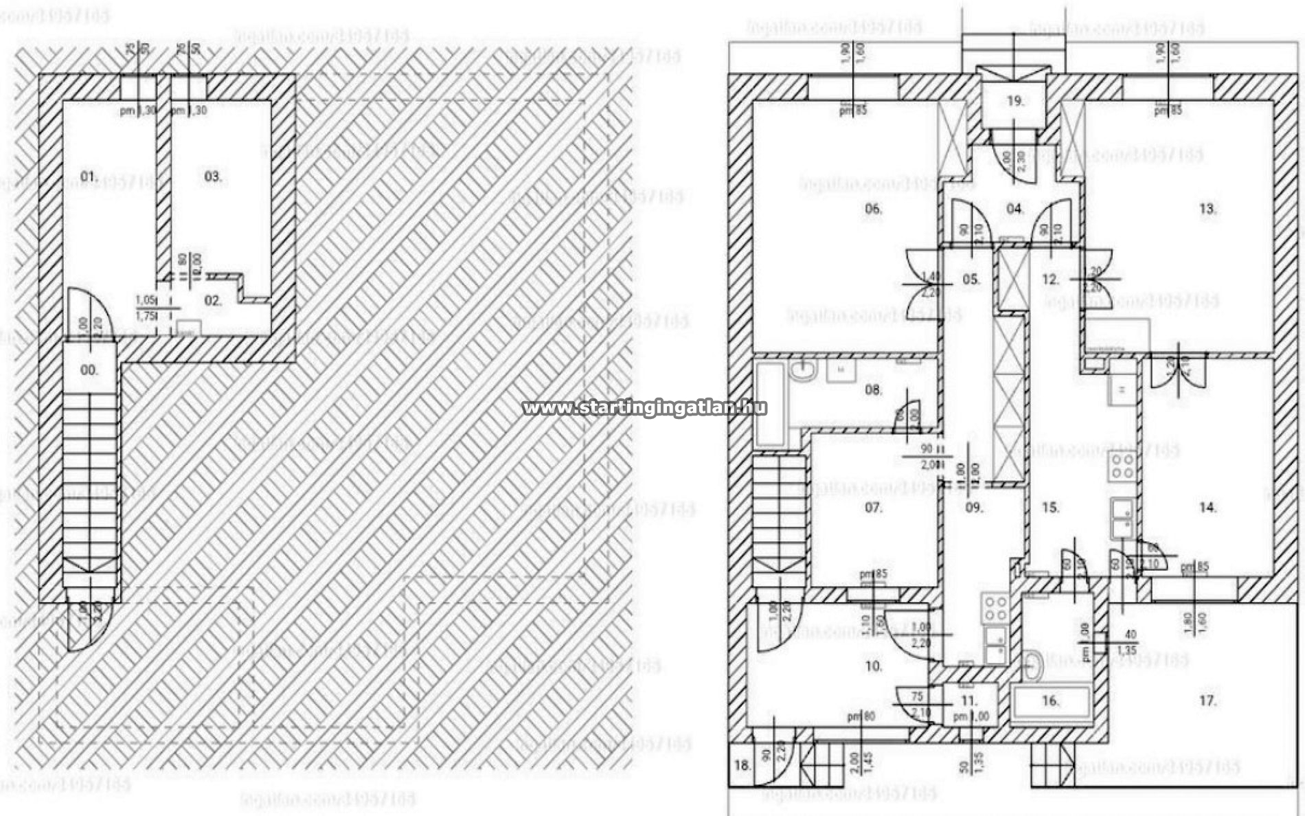
Eladásra kínálunk Budapest XIV. kerületében, Zugló csendes és zöldövezeti részén, a Gödöllői utcában egy különleges, sorház jellegű, kétgenerációs családi házat. Az ingatlan ideális választás mindazoknak, akik tágas, kényelmes otthonra vágynak, ahol a család több generációja együtt, mégis külön életterekben élhet.
A ház két, teljesen önálló lakrészből áll, melyek mindegyike saját konyhával és fürdőszobával rendelkezik, így biztosítva a teljes komfortot és a privát szférát minden családtag számára. A közös előtérből nyíló két lakrész egyenként két-két lakószobával rendelkezik. A 521 nm-es telken álló ingatlan kertje további lehetőségeket kínál a kikapcsolódásra: a szalétli ideális helyszíne lehet baráti vagy családi összejöveteleknek, közös sütögetéseknek, nyári estének, barkácsolást kedvelőknek kedvez a kertben álló 10nm-es műhely, ide mind két lakótérből külön kijárat lett kialakítva. A két lakóegység fűtési rendszere egy, amelyet gáz cirkó üzemelteti, elektromos hálózata külön külön villanyórával lett ellátva.
A zöldövezet nyugalma és a parkosított utca hangulata tökéletes környezetet teremt a mindennapokhoz, ugyanakkor a közlekedés rendkívül kedvező: az Örs vezér tere, az M3-as autópálya bejárata, valamint számos busz- és villamosmegálló gyorsan elérhető, így a város bármely pontjára könnyedén eljuthat. A közelben óvodák, iskolák, parkok és bevásárlási lehetőségek is megtalálhatók, amelyek a családi élet minden igényét kielégítik.
Ez az ingatlan kiváló lehetőséget kínál azok számára, akik szeretnének együtt, de mégis külön élni szeretteikkel, miközben élvezhetik a nyugalmat, a kényelmet és a saját kert adta szabadságot.
Azon kedves ügyfelek, akik általunk találják meg leendő otthonukat, az ügyvédünk által szerkesztett adásvételi szerződés díjából kedvezményben részesülnek!
Eladná ingatlanát? Bízza ránk!
Nálunk az értékesítés átlátható, egyszerű és biztonságos folyamat. A vételt és az eladást egy kézben tartjuk - így Önnek csak a sikeres üzletet kell ünnepelnie.
Hívjon minket még ma, és ingyenesen felmérjük ingatlana piaci értékét!
Miért válasszon minket?
- - Gyors értékesítés
- - Széles vevőkör
- - Tapasztalt értékesítők
- - Modern, kiemelt online megjelenés
- - Rugalmas jutalék
- - Teljes körű ügyintézés az első lépéstől a birtokbaadásig
Hívjon most, vagy Írjon üzenetet még ma, és indítsuk el az értékesítést! Hívjon most, vagy Írjon üzenetet még ma, és indítsuk el az értékesítést! Mobil: +36-20-511-8501
További ajánlataim: startingingatlan.hu/ertekesitoink/147
Üzenet a hirdetőnek
Ingatlan hírek és információk ELSŐ KÉZBŐL
Iratkozzon fel hírlevelünkre még ma, és mi havonta egyszer elküldjük Önnek a legfontosabb piaci változásokat, ingatlan trendeket és vásárlási tanácsokat, tippeket!

